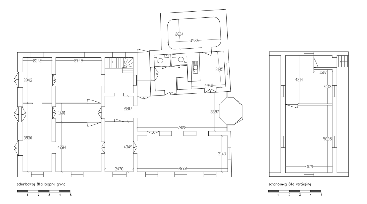
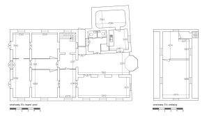
Scharlooweg 81A
A plantain style landmark for rent, right in the middle of Willemstad? That is what makes this monument quite unique! You won't find many, or probably any, similar to this one in the city center and it's surrounding districts.
When heading to Willemstad and approaching Punda, you will first drive down Berg Altena, into the city with Pietermaai on your left and Scharloo on your right. Right there, in the beginning of Scharloo, you can spot this gem from the street! What is also unique is that it has a wide open view as there are no buildings build in front of it. From its terrace you can look over Plasa Horacio Hoyer towards Juliana plein. Day and night this provides a cosmopolitan view on the historic city of Curacao.
When you look at it from the Scharlooweg point of view, then it's location is towards the end of that street. Your organization or new venture will be in good company, right besides prominent organizations like Vertegenwoordiging van Nederland, National Archief and close to the Central Bank of Curacao & St. Martin, Ennia or Grant Thornton.
Our monument on Scharlooweg 81A is ideal for a medium size business or with some investment you could even turn it into a restaurant or lunchroom! Bigger enterprises can consider leasing it together with Scharlooweg 81B, which is right behind it. They share a parking lot and at the moment it is also available for rent! Making it a unique opportunity!
Can you already envision your company here? Or would you like to make an appointment with us to help you envision the endless possibilities more clearly?









