Scharlooweg 61
This late 19th century office building on Scharlooweg 61 proves that contemporary additions to classical architecture can create a space that is both functional and elegant. Stadsherstel Willemstad looks at ways to combine preservation and innovation. In Curaçao the area of Scharloo used to be an important trade center, after a period of decay, it nowadays is a important business center
While located in downtown Willemstad it still has excellent accessibility to the ring, Otrobanda and the Saliña area. Big companies like Ennia, Central Bank, Grant Thornten, VWN, Van Eps Kunneman Van Doorne, Arcas Partners and more are all housed in this district.
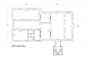
This building is quite large and is suitable for medium to large size organizations. The spaces inside are also quite spacious, making it ideal for open workspaces. The basic layout is as follows; The main entrance opens to a gallery space in front, followed by two large spaces and two smaller wings in the back. There is an enclosed and covered patio. And it has a private parking space.
What makes this property unique is not only the historic details, but also the modern ones. Such as the modern glass wall dividing one of the large spaces. The gallery is the ideal reception area and the elegant patio gives access to a staff kitchen, server room. There is a large secure vault, which can also be used as archive space.
The hint to innovation can already be noticed outside: the unique staircase! It has a sleek and modern design and connects the building with a glass hall way. The decision to build this external stairway, was partly to not waste space inside and to be able to offer those 2 wide open spaces. The stairs provides access to a spacious attic with lots of natural light. Ideal to function as a meeting room or as an open office garden.
Do you think this office could be a match with your organization? Contact us for a viewing and see for yourself what endless possibilities it can provide for your business!













