Conscientiesteeg 40-42
The past few years the historical center of Willemstad has been gaining popularity! Living, working and leisure in districts like Otrobanda is trending. This is your chance to start a new business in the upcoming neighborhood or to make this monument your new home.
The Area: our property on the Conscientiesteeg has recently been renovated again and is now available for rent. It is around the corner of the main shopping street of Otrobanda and walking distance to Punda, both with plenty of restaurants and bars. The hospital is very near and so is the cruise terminal next to Renaissance hotel & Riffort mall. It's close to Scharloo Abou and is adjacent to Seri Otrobanda, which are hotspots with a lot of street art and cultural heritage.
It's function can be either residential or commercial, but a combination is also possible. You can rent part of it or rent it as a whole. The property on the Conscientiesteeg could be an ideal space to start a boutique hotel, airbnb, hostel or student housing. Or do you have another great idea? We are open to new initiatives!
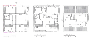
On the ground floor there is 1 space that is ideal as an office, lobby, shop, co-working space or a combination of these. It doesn't have a kitchen or shower. The other space on the ground floor is a spacious apartment, with a kitchen, bathroom, living room and 1 bedroom. Both have their own entrance.
On the first floor there is a large space that can function as an office, home or shared living concept. It has 4 (bed)rooms, of which 2 have their own ensuite bathroom and the other 2 rooms share a bathroom. There is a shared kitchen, living room and balcony. The beautiful wooden floors and arches give it a warm character.
But that's not it! There is also an attic! The attic shares it's entrance and stairway with the first floor. It could be rented out separately, but most ideal is to rent it together with the first floor. The attic is very spacious, it has it's own kitchen, living room, bathroom, bedroom and a view!
Specifications:
• Built in 19th century
• m2 varies per unit
• Ground floor:
• 1 office space
• 1 separate apartment
• Each own entrance
• 1st floor:
• 4 bedrooms + 3 bathrooms
• Kitchen & living
• Attic:
• Studio appartment
• with bathroom & kitchen
• Shared entrance
• Commercial and/or residential
• Price varies per unit, starting from fl 700
• Special offer if rented as a whole



















